In het Lotushof staat de menselijke maat en verbinding centraal. Een plek om te leven, waarbij geborgenheid en veiligheid gepaard gaat met mogelijkheden om te ontmoeten en samen met anderen deel te zijn van iets groters. Het ontwerp is zorgvuldig vormgegeven met een duidelijk eigen identiteit, waar mensen zich eenvoudig mee kunnen vereenzelvigen. Een luchtige opzet met spannende doorkijkjes, een uitnodigende doorgang en veel groen. Lotushof draagt zo voor zowel de toekomstige bewoners als voor de buurt positief bij aan de betekenis van deze fijne plek in Nieuwegein.

Lotushof biedt plek aan in totaal 48 woningen waarvan 24 grondgebonden koop woningen en 24 sociale- en middenhuur appartementen. Daarnaast een buurthuiskamer, 62 parkeerplekken 220 fietsparkeerplekken, opstelplekken voor scootmobielen en twee collectieve buitenruimtes.

Concept schema’s

Sociale interactie

Het plangebied heeft een strategische ligging direct bij het levendige centrum met voorzieningen Hoog Zandveld en het groen van het Lotusplantsoen. Het Lotushof vormt letterlijk een stapsteen tussen deze twee onderscheidende woonkwaliteiten die Nieuwegein te bieden heeft: groen en voorzieningen. Door de bouwvolumes te wortelen in deze context en een betekenisvolle, groene verbinding in het plan op te nemen, ontstaat een ontspannen en weelderige setting. De bouwvolumes verspringen zowel in de rooilijn als op de verdiepingen. Zo ontstaat er een ruimtelijke verweving tussen de bebouwing en de omgeving.

Deze groene snede in het Lotushof vormt een ruimtelijk en sociaal knooppunt in de wijk. Deze openbare en autovrije route geven wij nog een accent door er een buurthuiskamer aan te plaatsen. Deze buurthuiskamer zal worden gerund door actieve (buurt-)bewoners en wordt een belangrijke ontmoetingsplek voor alle leeftijden. Ook bied hier brede trap toegang tot de groene hof, de collectieve binnentuin van het plan. Hier is gelegenheid voor ontmoeten en verblijven, met respect voor ieders ruimte en behoeften.

De 1,5m brede margestrook zit als een buffer tussen de openbare ruimte en de private ruimtes van de woningen. De overgangen zijn hier zorgvuldig ontworpen en ingericht om te zorgen voor een geleidelijkheid en een optimale levendigheid. Rondom de entrees zijn plantenbakken en bankjes, waar bewoners kunnen zitten, met de buren een kopje koffie drinken en voorbijgangers begroeten, hierdoor zijn er ogen op straat en vergroot het de collectieve verantwoordelijkheid voor de sociale cohesie en veiligheid van de buurt.

 

Doorsnede over appartementen, snede en hof

Situatie plangebied

De vormgeving van de gebouwen en de gevels is geworteld in de context van de opgave en de omgeving. Het geheel heeft een alzijdig representatief karakter, waarbij de gevels op de verschillende plekken in het plan subtiel van elkaar verschillen. Met een materialen-palet van genuanceerde baksteen (handvorm) en hout (bijv. Accoya of Bamboe) wordt er door het plan heen verschillende composities gemaakt. De materialen worden gekenmerkt door een natuurlijke uitstraling en aardse, zachte kleurtinten. De beide bouwvolumes vormen door deze gelijkwaardige behandeling in zowel materiaal als compositie een verrassend maar vanzelfsprekend ensemble.

Bij de grondgebonden woningen wordt de individuele woning herkenbaar doordat er metselwerk penanten over de volle bouwhoogte worden doorgetrokken. Aan de parkzijde wordt dit effect door de verschuiving aangezet. Daardoor ontstaan er twee verschillende gevelzijden die reageren op de context: de pleinwand ‘formeel’ in de rooilijn, de parkzijde ‘informeel’ aangehecht op het groen.

De entree van het appartementengebouw en de buurthuiskamer zijn door hun transparante gevels zeer herkenbaar. Hier zal ’s avonds licht naar buiten schijnen, wat de levendigheid ten goede komt en de groene verbinding zal aanlichten. Een subtiele luifel benadrukt nog eens deze twee belangrijke plekken in het plan.

Groene snede gezien vanuit het park

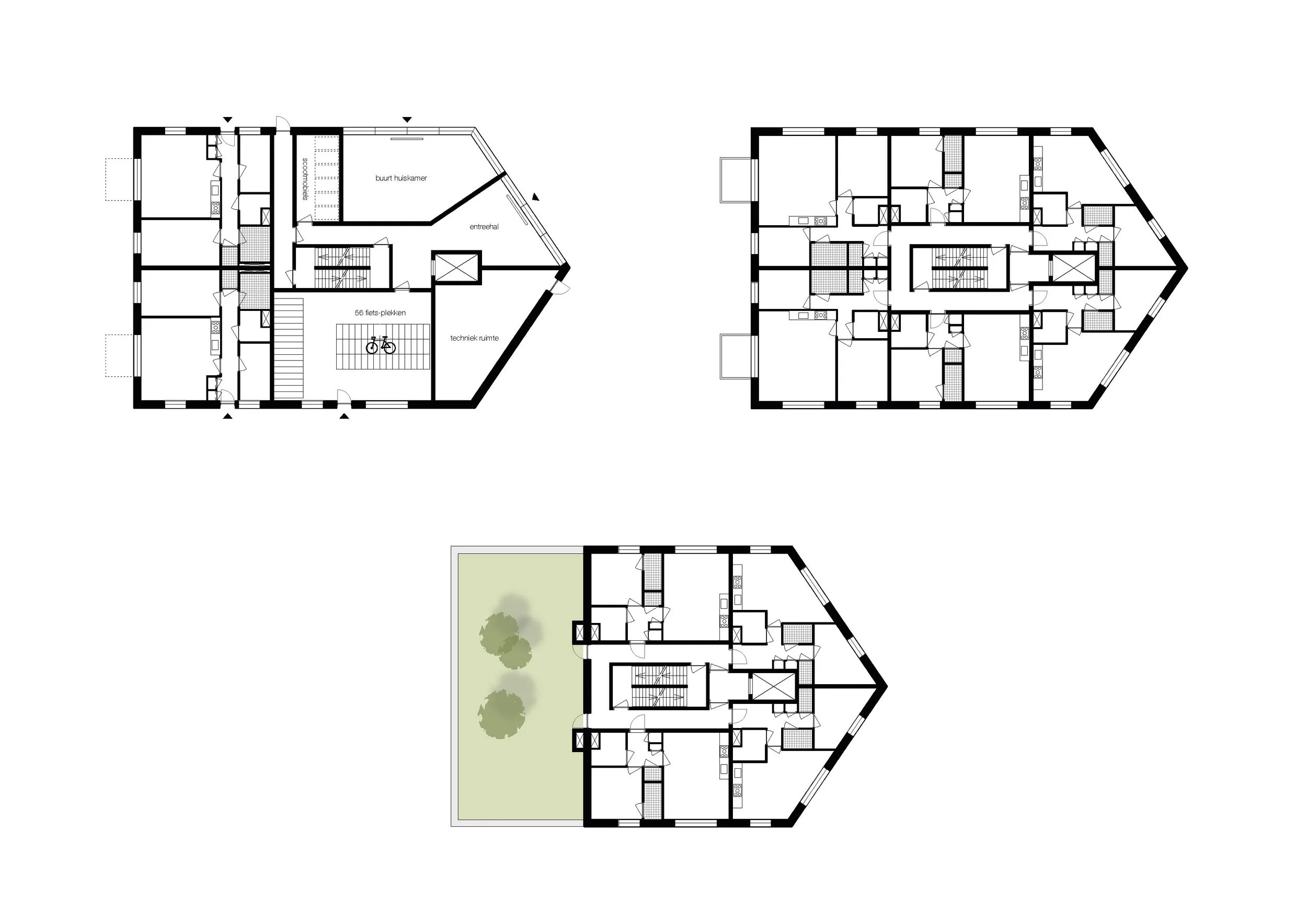
Plattegrond begane grond en rugzakwoningen

De 24 grondgebonden woningen hebben allemaal de voordeur op maaiveld. De woningen hebben in de margestrook een voortuin met een groene invulling, met een pad dat naar de voordeur leidt. Zowel voor de auto’s als de fietsen is er op de begane grond ruimte in de collectieve stallingsruimte.

De woningen omzoomen de parkeerplaatsen door er omheen te vouwen: de rugzakwoning. Dit biedt ook de mogelijkheid voor flexibel gebruik: de verblijfsruimte op de begane grond kan naar wens een werkkamer, een speelkamer of een extra slaapkamer zijn. De woonlaag is op de 1e verdieping. Vanuit deze woonlaag is er een directe verbinding met de buitenruimten op het dek. De tweede verdieping is de slaapverdieping, net als de optionele derde verdieping van de woningen aan de pleinzijde. De woningen zullen worden uitgevoerd in CLT.

Snede gezien vanuit centrumzijde met entree appartementengebouw

De entreehal voor de bovenliggende appartementen is op de hoek van de binnenstraat gesitueerd: goed zichtbaar en gemakkelijk bereikbaar. De fiets- en scootmobielparkeervoorzieningen zijn direct bereikbaar vanuit het openbare gebied.Daarnaast ligt, ook aan de binnenstraat gelegen, de buurthuiskamer.

De appartementen worden ontsloten door een middenkern waarin de trappen en de lift zijn opgenomen. Die middenkern zorgt ervoor dat het gebouw een alzijdige uitstraling heeft. De structuur en constructieve opzet van het gebouw biedt gelegenheid voor differentiatie of toekomstige samenvoegingen. Deze flexibele opzet vergroot de duurzaamheid van de woningen. De woningen zijn ontworpen met het oog op de toekomst en de doelgroep senioren en zijn zgn. nultreden-woningen. 

Begane grond, midden- en topverdieping

Collectieve binnentuin

Duurzaamheid

Het ontwerp realiseert een hoge ambitie op het gebied van duurzaamheid. De woningen zullen niet bijna energie neutraal zijn, maar volledig energie neutraal (BENG 3 = 100%). De grondgebonden eengezinswoningen zijn ontworpen als als nul-op-de-meter woningen.

Om de energievraag voor verwarmen zoveel mogelijk te beperken, zullen de daken worden uitgevoerd met een RC van 8, transparante delen voorzien in triple glas en de gebouwschil is extra luchtdicht met een Qv10 van 0,25. Voor verlaging van de koelvraag in de zomer is een optimum tussen transparante en dichte geveldelen opgezocht en een relatief lage ZTA waarde.

BENG, MPG en GPR scores

 

Duurzame maatregelen rugzak woningen

Gebouwverwarming, koeling en warmtapwater wordt opgewekt door middel van warmtepompen. Het appartementengebouw is voorzien van een collectieve lucht-warmtepompinstallatie met een boosterwarmtepomp per appartement voor het verhogen van de tapwater temperatuur. Daarnaast heeft iedere woning mechanische balansventilatie met warmte-terug-win unit (WTW unit). Door middel van luchtkwaliteitsensors in verblijfsruimten en zonekleppen zal de ventilatie naar de juiste ruimte worden gestuurd. Collectieve pv-panelen op het appartementengebouw voorzien in de energievraag van alle gebouwgebonden installaties. De grondgebonden woningen worden per woning voorzien van voldoende pv-panelen voor het dekken van de energievraag van zowel de gebouwgebonden installaties als gebruikers zelf. Ook zullen de daken worden voorzien van waterbergingen. Het afgevoerde hemelwater zal o.a. gebruikt worden voor bevloeiing van het groen in het project.

Duurzame maatregelen appartementen

Naast de duurzame maatregelen worden er ook aanvullende circulaire maatregelen toegepast:

De grondgebonden woningen worden gebouwd in hout. Dit heeft vele voordelen zoals hoge herbruikwaarde, minder installatieonderdelen die hoeven te worden ingestort (waardoor deze in de toekomst gemakkelijker te vervangen of te hergebruiken zijn) en CO2 reductie; 
De toegepaste pv-panelen zullen volledig gemaakt zijn uit bio-based of gerecyclde polymeren. Hierdoor zijn deze recyclebaar en circulair in tegenstelling tot de meeste gangbare panelen; 
Een deel van de installaties (liften, wtw-units, centrale verlichting, etc) heeft de potentie om ‘’as a service’’ te worden aangeboden. Hierdoor blijft een leverancier verantwoordelijk voor het leveren van kwaliteit gedurende de hele levensduur en voor terugname van het product aan het einde hiervan. Dit komt de investeringskosten en daarmee de lasten voor de koper ten goede.

Waterberging

Natuur inclusief

Ontwikkelaar: Vinkbouw

Landschapsarchitect: Studio Blad

Duurzaamheidsadviseur: Cauberg Huygens

Installatieadviseur: Techniplan

Constructeur: Pieters Bouwtechniek